
Tarif:
libre et gratuit
Lieu:
Rue des Terreaux-du-Temple 6,
Genève
Organisateur:
Département du territoire (DT)
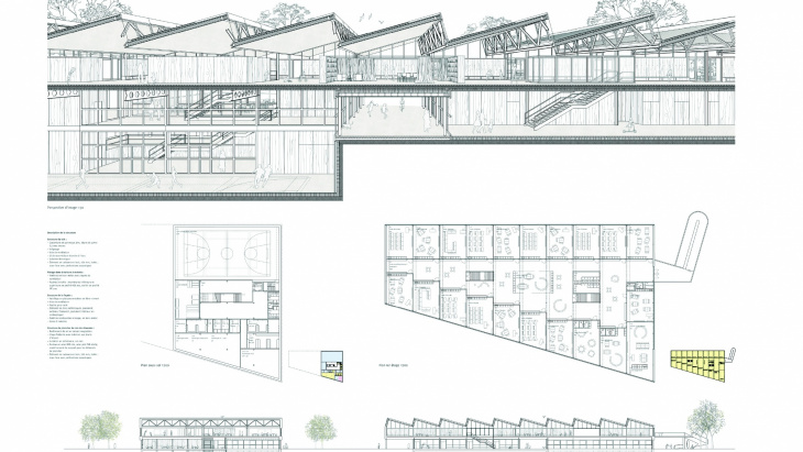
Le projet lauréat du concours d'architecture révèle l'image du groupe scolaire du quartier des Vernets.
L’exposition présente l’ensemble des projets reçus ainsi que le projet lauréat au Forum Faubourg – Rue des Terreaux-du-Temple – 1201 Genève :
- Mardi, mercredi, vendredi, samedi 11h00 > 18h00
- Jeudi 11h00 > 20h00
Une visite commentée du projet lauréat est prévue jeudi 17 janvier 2019 12h30 > 13h30